

ΜΕΛΕΤΕΣ ΙΔΙΩΤΙΚΩΝ ΤΕΧΝΙΚΩΝ ΕΡΓΩΝ
|
Ολες οι Μελέτες, εκπονούνται με ειδικό και προηγμένης τεχνολογίας λογισμικό σχεδίασης και υπολογισμών, με τις καλύτερες εφαρμογές hardware και software σύμφωνα με τις απαιτήσεις & προδιαγραφές της κείμενης Νομοθεσίας. Αντιπροσωπευτικά είδη μελετών που δύνανται να εκπονηθούν κατ' αποκλειστικότητα και με συνεργάτες Μηχανικούς : - Τοπογραφικά Διαγράμματα - Αποτυπώσεις κτιρίων - Τακτοποιήσεις αυθαιρέτων, - Μελέτες Αποκατάστασης, Προσθήκης, Επέκτασης, Διαρρύθμισης, Αναπαλαίωσης - Αρχιτεκτονικές Μελέτες σε στάδιο προμελέτης & πλήρους εφαρμογής, - Στατικές Μελέτες, Περιβαλλοντικές Μελέτες - Τεχνοοικονομικές Μελέτες, - Μελέτες Υδρευσης, Αποχέτευσης, Ενεργητικής & Παθητικής Πυροπροστασίας, - Ενεργειακής Απόδοσης Κτιρίων βάσει του νέου Κ.Εν.Α.Κ, - Ιδιωτικές πραγματογνωμοσύνες ακινήτων. |
|
- Μελέτη διαμόρφωση καταστήματος αντιπροσωπείας αυτοκινήτων VolksWagen στη Λαμία επί της οδού Βασιλικών |
|
- Νέα Διώροφη διπλοκατοικία με υπόγειο και Pilotis στη Νέα Αμπλιανη Λαμίας |
|
- Νέα Διώροφη πολυκατοικία με υπόγειους χώρους στη Νέα Αμπλιανη Λαμίας |
|
- Νέα Διώροφη εξοχική διπλοκατοικίαμε υπόγειους χώρους στην Κουβέλα του Δήμου Εχιναίων |
|
- Βιομηχανική εγκατάσταση Σφαγείωντριών (3) γραμμών στη Δυτική Φθιώτιδα |
|
- Αποτύπωση εγκαταστάσεων Βιομηχανίας επεξεργασίας σιτηρών και ζωοτροφών στο Αχλάδι του Δήμου Εχιναίων |
|
- Συγκρότημα παραγωγής έτοιμου σκυροδέματος στη ΒΙ.ΠΕ Λαμίας |
|
- Διάφορες κατασκευαστικέςλεπτομέρειες οικοδομικών έργων |
|
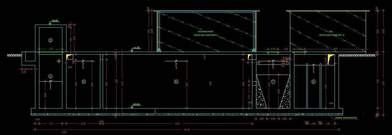
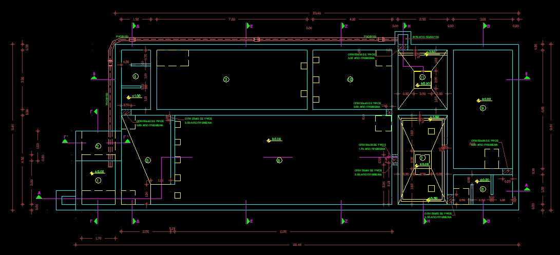
- Συγκρότημα Βιολογικού Καθαρισμού Συγκροτήματος Σφαγείων τριών (3) γραμμών στη Σπερχειάδα Φθιώτιδας |
|
